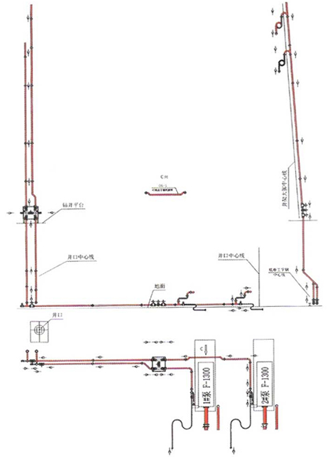
ZJG100/35 drilling fluid manifold consists of Z23Y100-5000PSl & Z23Y50-5000PSmnd valve , high-pressure spherical union , high-pressure cone union , tee . High-pressure hose . elbow . Pressure gauge . And pup joint etc . Ground valve - group adopts goose type tee with compact structure . Little fluid resistance and large power effectuality . Adaptor spool adopted on rigid valve-group can be directly used as single pipe on site . create quick strip . As for being manufactured with special machining tool , it can create seal under fine sphere and core matched with sealing ring . The gate and valve seat of Z23Y-5000psi mndvalve are welded with carbide against erosion and corrosion , so that it can enlarge the working life . And reduce operating torque . Elbow , adaptor , tee and cross are made of high-strength alloy steel , with suited wall thick and fine heat treatment , so it can meet the requirement on strength and corrosion . The heat treatment , so it can meet the requirement on strength and corrosion . The part required at high precision . Should be machined with special technique to ensure the manufacture quality , and the pressed part should be hydrostatic tested on strength and sealing property to ensure the ex-plant quality . Installation 1 . First clean up each sealing face and sealing groove of union and coat it with grease and rid of dirt form the pipeline . 2. Check whether up each jointer is fastened or not . Usage gist & maintenance 1. Regularly inject mud gate valve with grease to maintain the gate valve ; 2. Regularly check whether all connecting posit on and fixing bolts are loose ; 3. If leak around sealing position , the seal should be replaced immediately ; 4. Keep the outer surface of the manifold clean and paint it against rust regularly . Notice Z23Y-5000PSI hard sealing mud gate valve is only used for pipeline opening/closing but for choke valve so as avoid damage against sealing face .

|